Construction
Exterior
Interior
Bathroom
Mechanical
844.375.1234 | info@skytexhomes.com
Texas Manufactured Housing RBI License No: MHDRET00038054 and 38362
Dealer License #:
Images of homes are solely for illustrative purposes and should not be relied upon. Images may not accurately represent the actual condition of a home as constructed, and may contain options which are not standard on all homes.
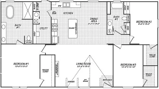
3 Bed | 2 Bath | 1,717 Sq. Ft. | 5' x 5'