Mechanical
Construction
Exterior
Interior
Bathroom
844.375.1234 | info@skytexhomes.com
Texas Manufactured Housing RBI License No: MHDRET00038054 and 38362
Dealer License #:
Images of homes are solely for illustrative purposes and should not be relied upon. Images may not accurately represent the actual condition of a home as constructed, and may contain options which are not standard on all homes.
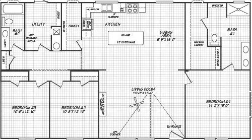
3 Bed | 2 Bath | 1,493 Sq. Ft. | 26' 8" x 56'
3 Bed | 2 Bath | 1,962 Sq. Ft. | 30' 8" x 64'
3 Bed | 2 Bath | 1,280 Sq. Ft. | 26' 8" x 48'